Ir al contenido
Urban Root
Menu
inicio
Proyectos
pilar a
besares
san marco
triunvirato
roosvelt
lexus
laguna del sol
arenas de garzón
ciudad de la paz
albanueva
guido
correa 2605
oficinas ramal tigre
josé ingenieros
aduar
tomkinson
lagunas del polo
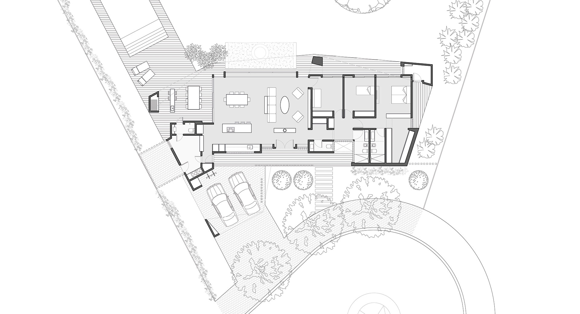
san marco
año 2021
obra terminada
fotos
renders
planos
inicio
fotos
renders
planos
inicio
fotos
renders
planos
inicio
fotos
renders
planos